Prodej domu s investičním potenciálem, Pusté Žibřidovice 2 podlaží, 650 m2 pozemek

Prodej domu s investičním potenciálem, Pusté Žibřidovice 2 podlaží, 650 m2 pozemek

2 590 000 Kč
400 m2

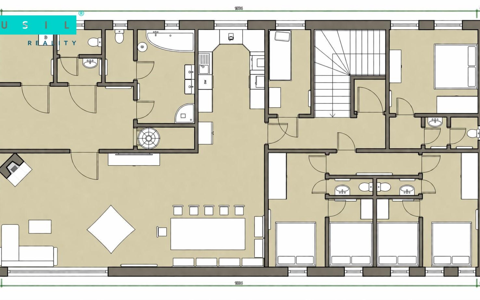
Nabízíme k prodeji multifunkční objekt s velkým potenciálem v Pustých Žibřidovicích (obec Jindřichov) Nabízíme k prodeji specifickou nemovitost s širokými možnostmi využití, nacházející se v klidné části obce Pusté Žibřidovice, spadající pod obec Jindřichov. Objekt je v katastru veden jako rodinný dům, ve skutečnosti však sloužil jako víceúčelová budova (sál, hospoda, řeznictví, kanceláře), což dnes otevírá zajímavý investiční potenciál. Budova má obdélníkový půdorys cca 10 × 20 metrů (zastavěná plocha cca 220 m2), disponuje dvěma nadzemními podlažími a půdou. Celková výměra pozemku je přibližně 650 m2 a má tvar písmene L, s přímým napojením na obecní komunikaci. Nemovitost je napojena na elektřinu a obecní vodovod, odpad je řešen septikem, plyn zde není zaveden. Objekt je ve fázi započaté rekonstrukce. Byla vyměněna okna za plastová trojskla, instalovány nové vstupní dveře i vrata. V horním patře je elektroinstalace částečně připravená (rozvody, přípravy), stejně jako koupelny (geberity, přípravy), některé příčky a části elektroinstalace jsou již dokončeny. Vytápění je aktuálně řešeno krbovými kamny. Součástí prodeje je také kompletně nakoupená sanita pro dokončení koupelen sprchové kouty, geberity, umyvadla, obklady i dlažba, vše již připraveno přímo v objektu, což výrazně snižuje budoucí investiční náklady. Krovy jsou v dobrém stavu a půda je zateplena foukanou izolací. Samotná střecha však bude vyžadovat opravu či částečnou rekonstrukci. Velkou výhodou je zachovaná šachta pro výtah, která rozšiřuje možnosti budoucího využití. V minulosti bylo na objekt vydáno stavební povolení pro vybudování bytových jednotek či apartmánů. Díky své dispozici a lokalitě je nemovitost ideální jak pro dokončení rekonstrukce a následné využití k rekreačnímu pronájmu (např. penzion), tak pro přestavbu na apartmány či bytové jednotky, případně kombinaci bydlení a podnikání. Lokalita nabízí klidné prostředí v přírodě, zároveň je v dosahu několika lyžařských areálů a termálních lázní. Výborná dostupnost do Šumperka a Hanušovic zajišťuje dobrou dopravní obslužnost. Cena: 2 590 000 Kč V případě zájmu nás neváhejte kontaktovat pro více informací nebo domluvení prohlídky.

Město
Jindřichov
Plocha
0 m2
Obytná plocha
400 m2
Konstrukce budovy
Cihlová
Topení
Bez topení
Třída náročnosti
G - Mimořádně nehospodárná

Zadejte alespoň tři znaky