Pronájem nadstandartního bytu o dispozici 3+KK v Olomouci
Pronájem nadstandartního bytu o dispozici 3+KK v Olomouci
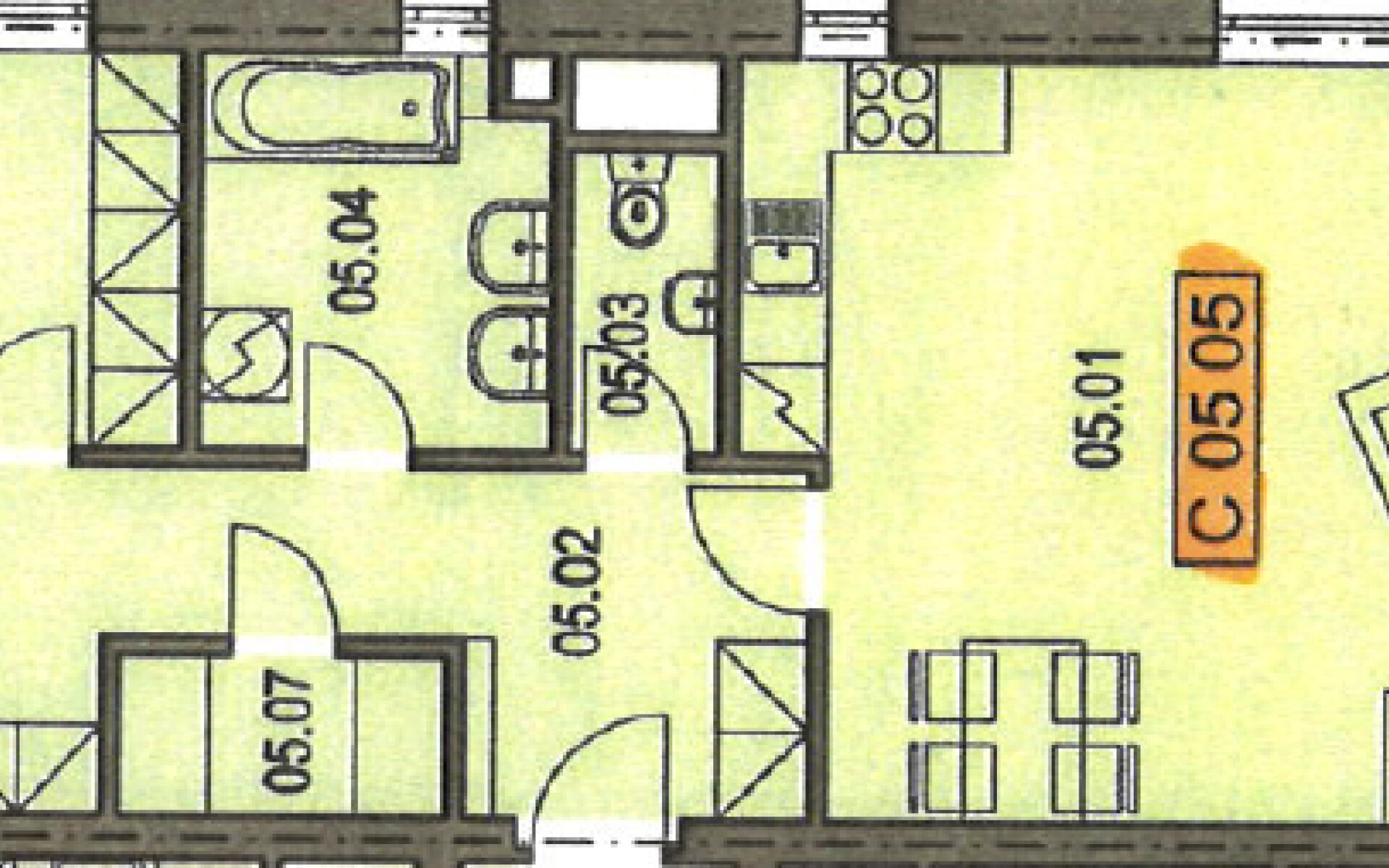
Pronájem krásného a prostorného bytu o dispozici 3+kk na ulici Družební v Olomouci. Byt má výměru cca 85 m2, nachází se ve čtvrtém patře cihlového domu s výtahem, náleží k němu prostorný balkón a komora umístěna na stejném podlaží. Krásná kuchyňská linka zhotovena na míru, je kompletně vybavena spotřebiči tj. - myčkou nádobí, horkovzdušnou troubou, sklokeramickou deskou, odsavačem par, a novou lednicí s mrazákem. V dětském pokoji je možné ponechat pracovní stůl, skříň a dvoupatrovou postel. V chodbě se nachází prostorná skříň a samostatná šatna. Koupelna s rohovou vanou je vybavena pračkou a sušičkou. Samostatné WC s umyvadlem. . V domě je výtah. Byt je vhodný pro rodinu i pár. Malý pes nevadí. Skvělá lokalita v klidné části města Olomouce. Veškerá infrastruktura na dosah. Skvělá lokalita s MHD v docházkové vzdálenosti; do centra města je to přibližně 10 minut pěšky. Možnost pronájmu krytého parkovacího stání přímo v domě za 1 500 Kč/měs. Vybírána kauce ve výši dvou měsíčních nájmu včetně energií. Provize RK jeden měsíční nájem + DPH. Volný ihned. Cena: 20.900, -Kč/měs. + energie cca 2.900, -Kč/měs., elektřina přepisem na nájemníka. Volné ihned. Pro více informací kontaktujte makléře zakázky.
