Pronájem výrobní a skladovací haly včetně kanceláří a kompletního zázemí
Pronájem výrobní a skladovací haly včetně kanceláří a kompletního zázemí
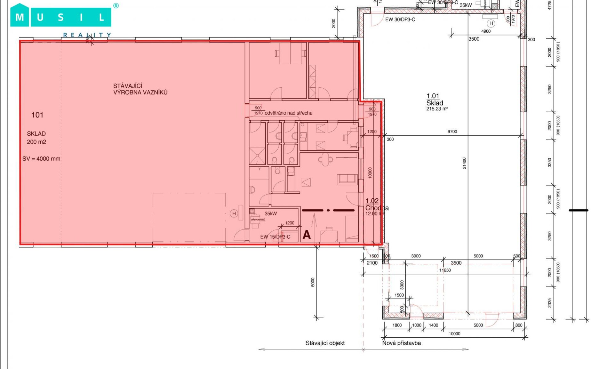
Pronájem výrobní a skladovací haly včetně kanceláří a kompletního zázemí. Hala o celkové užitné výměře cca 586 m2 se nachází v Hlušovicích u Olomouce a je velmi dobře dopravně dostupná i pro kamiony. Jedná se o zánovní stavbu cihlové, zateplené haly. Skladovací a výrobní prostor o výměře cca 405 m2 je přístupný dvěma průmyslovými vraty. Z boku budovy je navíc přístřešek 3x15 m. Hala má výšku stropů 4 metry. Na halu navazuje zázemí o celkové výměře cca 172 m2. Zázemí se sestává ze čtyř kanceláří, kuchyňky, dvou sprch, šaten muži/ženy a dvou WC, muži/ženy. Vytápění je zde řešeno kotlem na tuhá paliva (dřevo), případně plynovým kotlem. Parkování před budovou. Celý areál je kompletně oplocen a zabezpečen kamerovým systémem. Bezproblémový příjezd i pro větší nákladní vozidla. Volné dle dohody. Cena 103,-Kč/měsíc/m2 + DPH
