Pronájem nového cihlového bytu o dispozici 1+1 s parkovacím stáním v Olomouci-Nemilanech. Reprezentativní a úplně nový byt o výměře 45 m2 se nachází v prvním (posledním) patře menšího bytového domu o
Pronájem kompletně vybaveného cihlového bytu s balkónem a sklepem o dispozici 2+1 na ulici Politických vězňů v Olomouci-Neředíně. Byt se nachází v 1. patře, má výměru cca 60 m2 a pěkný, rozměrný balkó
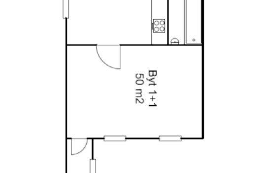
Nabízíme k pronájmu slunný byt 2+kk, o velikosti 50 m2 v krásné vile na ulici Resslova v Olomouci. Jedná se o cihlový dům se zahradou. Byt prošel nedávnou rekonstrukcí, pronajímá se bez vybavení, zaří
Prodej zahrady s chatou v Olomouci. Zahrada má celkovou výměru 1.660 m2, je celá oplocená a nachází se na výborném místě v těsném sousedství Olomouckého sídliště Lazce a v blízkosti Klášterního Hradis
Prodej rekreační chalupy-rodinného domu ve Velkém Týnci-Čechovicích. Chalupa se prodává včetně vlastních pozemků a zahrady o celkové výměře cca 3.000 m2. Jedná se o koncový řadový dům s číslem popisný
Prodej moderního, prostorného bytu o dispozici 2+1 s krásnou pavlačí na ulici Sokolská v Olomouci. Byt se nachází ve 2. patře historického, cihlového domu. Celková plocha bytu je 77 m2. Vzhledem k ori
Pronájem kompletně vybaveného cihlového bytu o dispozici 2+1 na ulici Norská v Olomouci. Reprezentativní a velký byt o výměře cca 60 m2 se nachází v 1. patře patře, náleží k němu sklep a pronajímá se
Pronájem bytu o dispozici 2+1 na ulici Nádražní ve Šternberku. Byt má výměru 63 m2, šatnu, balkón, sklep a nachází se ve třetím patře zrekonstruovaného panelového domu. Jedná se o rozlehlý byt se dvěm
Pronájem kompletně vybaveného cihlového bytu o dispozici 1+kk na ulici Pavelčákova v historickém centru Olomouce. Byt se nachází v prvním patře kompletně zrekonstruovaného domu v centru města, má vým
Nabízíme k prodeji družstevní byt 2+1 na ulici Trpínky, ve velice klidné a žádané lokalitě Vyškova. Byt v původním stavu o velikosti 61 m2 s výbornou dispozicí, dva neprůchozí pokoje. V bytě je také p