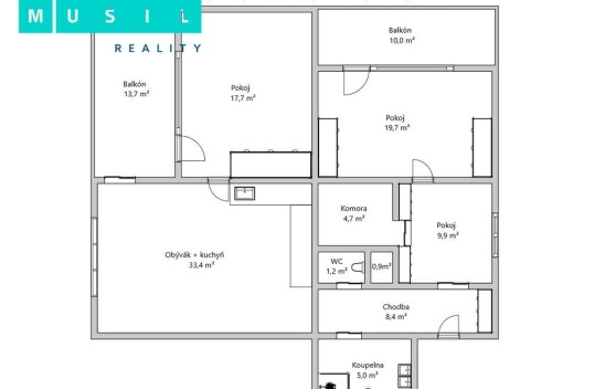
Pronájem velmi hezkého, kompletně zrekonstruovaného, slunného bytu o dispozici 2+kk nacházející v Olomouci na ulici Dukelská. Jedná se o velmi příjemné bydlení s výměrou 46 m2, ke kterému náleží balkón, kolárna a sklep o výměře 4 m2. Nemovitost je situována v 5.NP cihlového revit ...