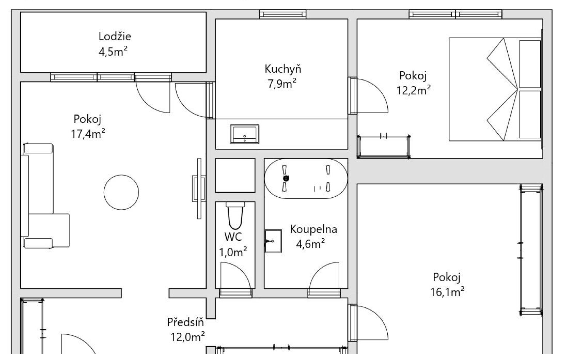
Nabízíme k prodeji krásný slunný byt o dispozici 3+kk v Olomouci, nacházející se na ulici Horní Lán s výborným dispozičním uspořádáním. Nemovitost se nachází ve 4. patře cihlového domu bez výtahu a má výměru 91,1 m2. Denní část se skládá z obývacího pokoje, na který navazuje kuch ...