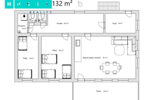
Prodej luxusního, zánovního, samostatně stojícího rodinného domu s garáží a zahradou v Olomouci-Křelově. Dům se nachází v klidné lokalitě obce mimo jakoukoliv rušnou silnici, tedy s minimálním provozem okolo domu. Jedná se o zděnou novostavbu kolaudovanou v roce 2021. K domu se p ...