Pronájem slunného, útulného bytu se dvěma balkóny 2+1 U reálky v blízkosti parku v Olomouci. Byt se nachází v 1.patře a pronajímá se částečně zařízen. Jedná se o dispozici 2+kk, která je efektivně vyř
Pronájem moderního, zánovního bydlení na ulici Gen. Píky v Olomouci Neředín. Byt je o dispozici 2+1 a výměře 65m2. Nachází se v 5. patře s výtahem a skládá se z obývacího pokoje s plně vybaveným kuch
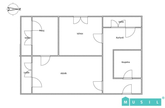
Prodej prostorného, kompletně zrekonstruovaného bytu o dispozici 3+1 s lodžií v Olomouci na ul. Skupova. Byt se nachází v sedmém patře panelového domu, který prošel celkovou revitalizací. Na domě nová
Pronájem zcela nově vybudované kanceláře ve zrekonstruované administrativní budově nedaleko centra v Olomouci. Tato kancelář se nachází ve 3. patře a má výměru 19m2. Jedná se o novou světlou kancelář
Pronájem nebytového-kancelářského prostoru v přízemí vily s kancelářemi na ulici Václavkova v Olomouci. Prostory mají celkovou výměru 57 m2 a skládají se ze dvou samostatných kanceláří kuchyňky s posezením, sprchy a WC. První, vstupní kancelář je velmi pěkná a prostorná a je ze s ...
Pronájem prostorného, zrekonstruovaného bytu 2+1 v klidné části města na ulici Letná v Olomouci. Byt se nachází v 1.NP většího rodinného domu. Je o dispozici 2+1 a výměře 63m2. Nové vinylové podlahy a
Pronájem velmi hezkého bytu o disp. 2+kk v přízemí bytového domu na ulici Želivského, výměra bytu činí 45 m2. Byt je po celkové rekonstrukci, má dřevěná Eurookna včetně žaluzií, plovoucí podlahy, koup
Pronájem velmi hezkého, prosluněného bytu 1+1, který se nachází v 1.patře cihlového domu v klidné lokalitě na ulici Bří. Wolfů. Byt nabízí velkorysou výměru 48 m2, jeho součástí je komora (špajz) a sa
Pronájem částečně vybaveného, slunného bytu s balkónem a sklepem o dispozici 2+1 na ulici Politických vězňů v Olomouci-Neředíně. Byt se nachází v 1. NP, má výměru cca 60 m2 a pěknou, zrekonstruovanou
Pronájem hezkého, udržovaného bytu o dispozici 2+1 na ulici Rožňavská, který je umístěn v 1.patře panelového domu s výtahem. Výměra bytu činí 44 m2 a náleží k němu sklepní kóje, v domě je možno využív