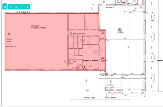
Pronájem kanceláří v prvním patře administrativní budovy na ul. Tovární v Olomouci. Celá plocha nabízí vlastní vstupní chodbu (26,3 m2), dvě menší samostatné kanceláře o výměrách 23,9 m2 a 30,6 m2, a dále velkou otevřenou open space kancelář s rozlohou 167,6 m2 (viz. půdorys). V ...